Chesapeake
3
2.5
2,612
The Chesapeake catches your eye from the moment you step into the large foyer with an elegant open Staircase. A formal study off the foyer offers the perfect spot for remote working and can be personalized with French doors. The two-story great room features a gas-burning fireplace with granite surround and a vaulted ceiling, adding more volume the open feel of the home. The kitchen boasts a large working island with plenty of room for seating, stainless steel appliances and cushion close cabinets and drawers. It shares a walk-in pantry with the adjacent dining area. The option extend your living space with a deck, screened porch or sunroom is available just off the dining area. A mudroom & laundry room are conveniently located adjacent to the two-car garage.
The primary bedroom suite is tucked away in an alcove off of the dining area and can be personalized with a cathedral or stepped ceiling as well as transom windows. Two walk-in closets provide ample space for storage. The primary bath features an extended double bowl vanity, quartz countertops and tile floor.
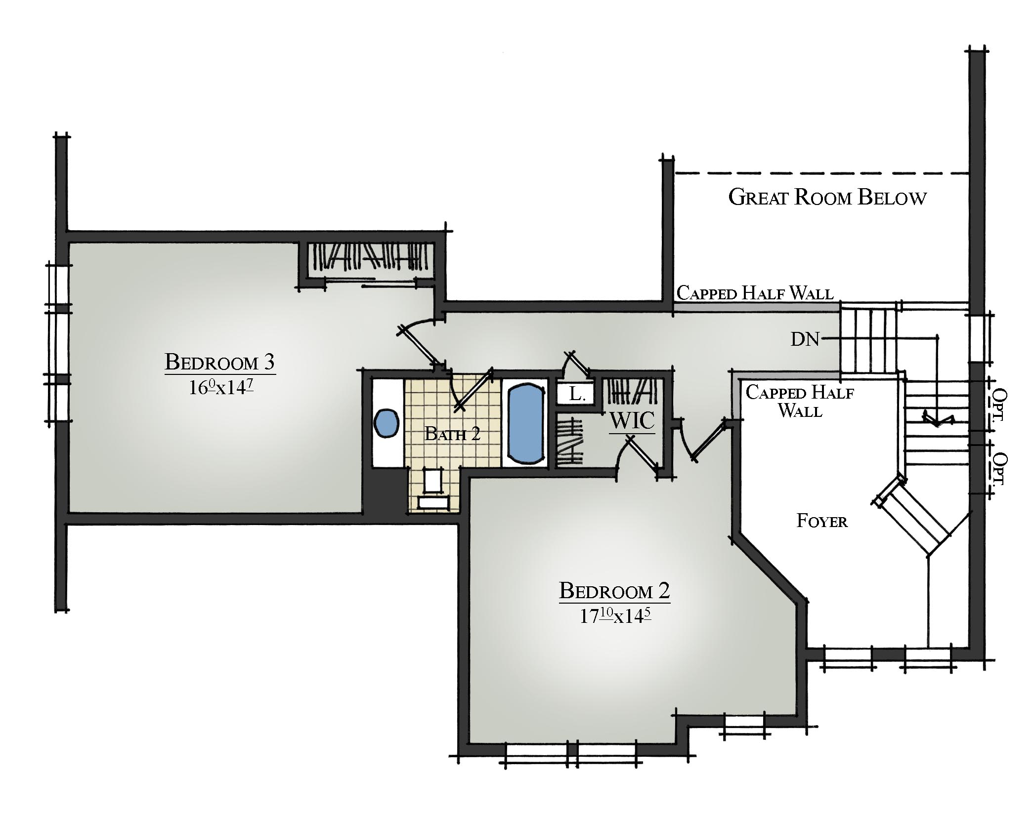
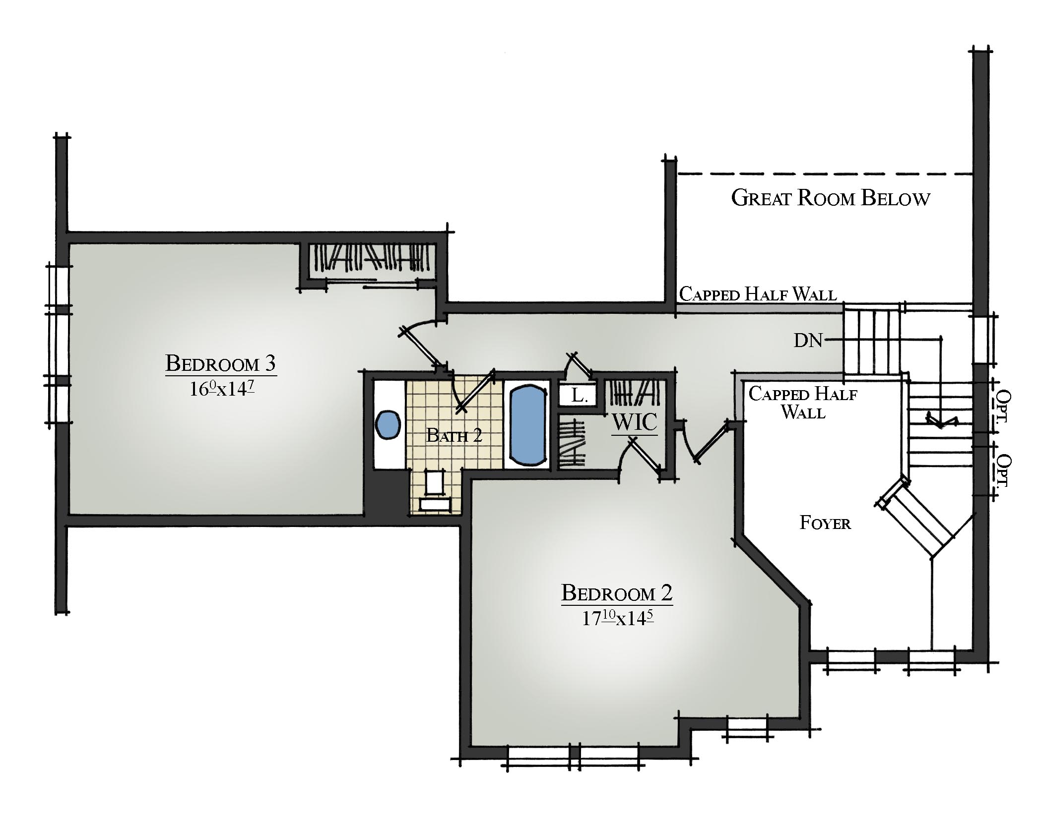
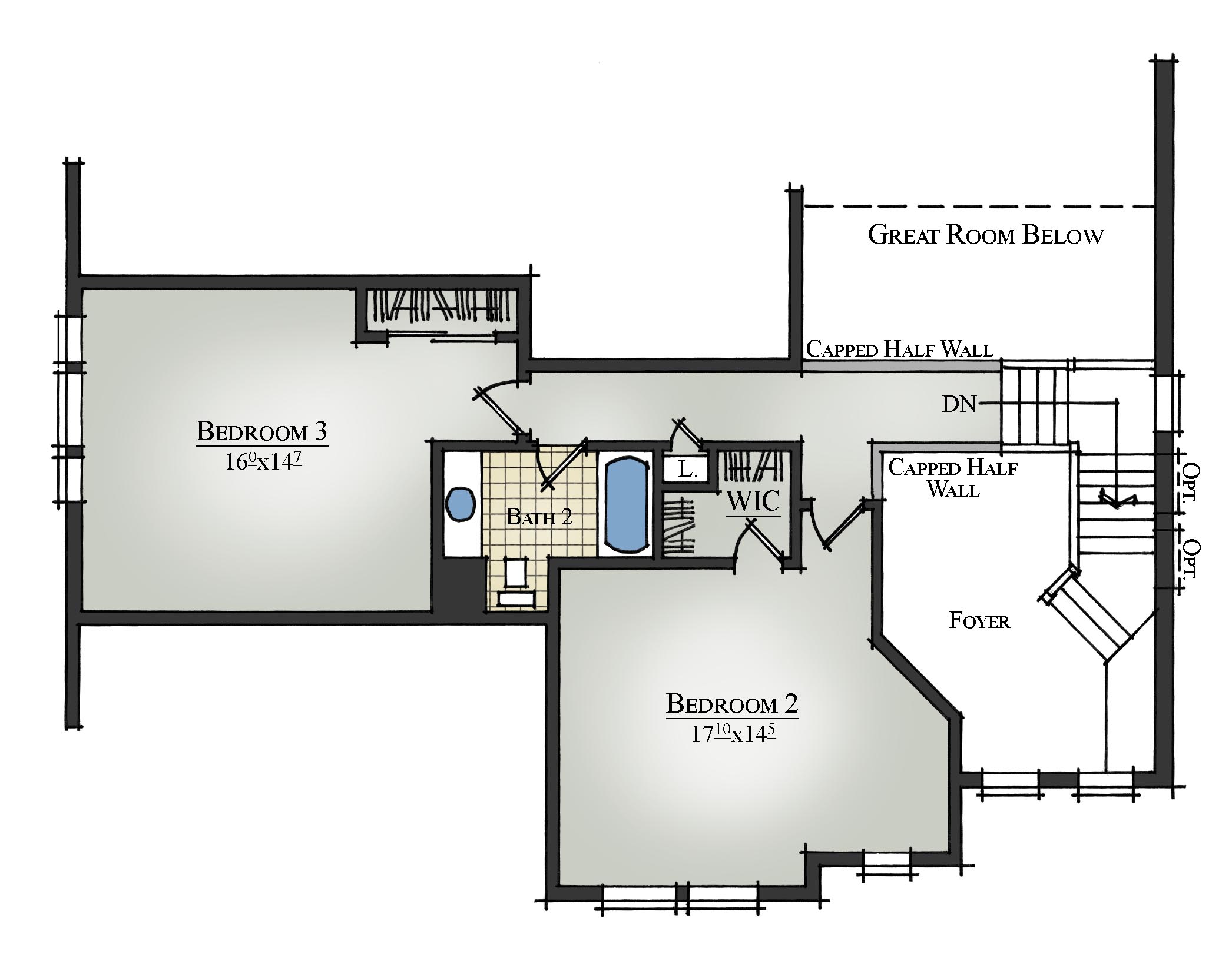
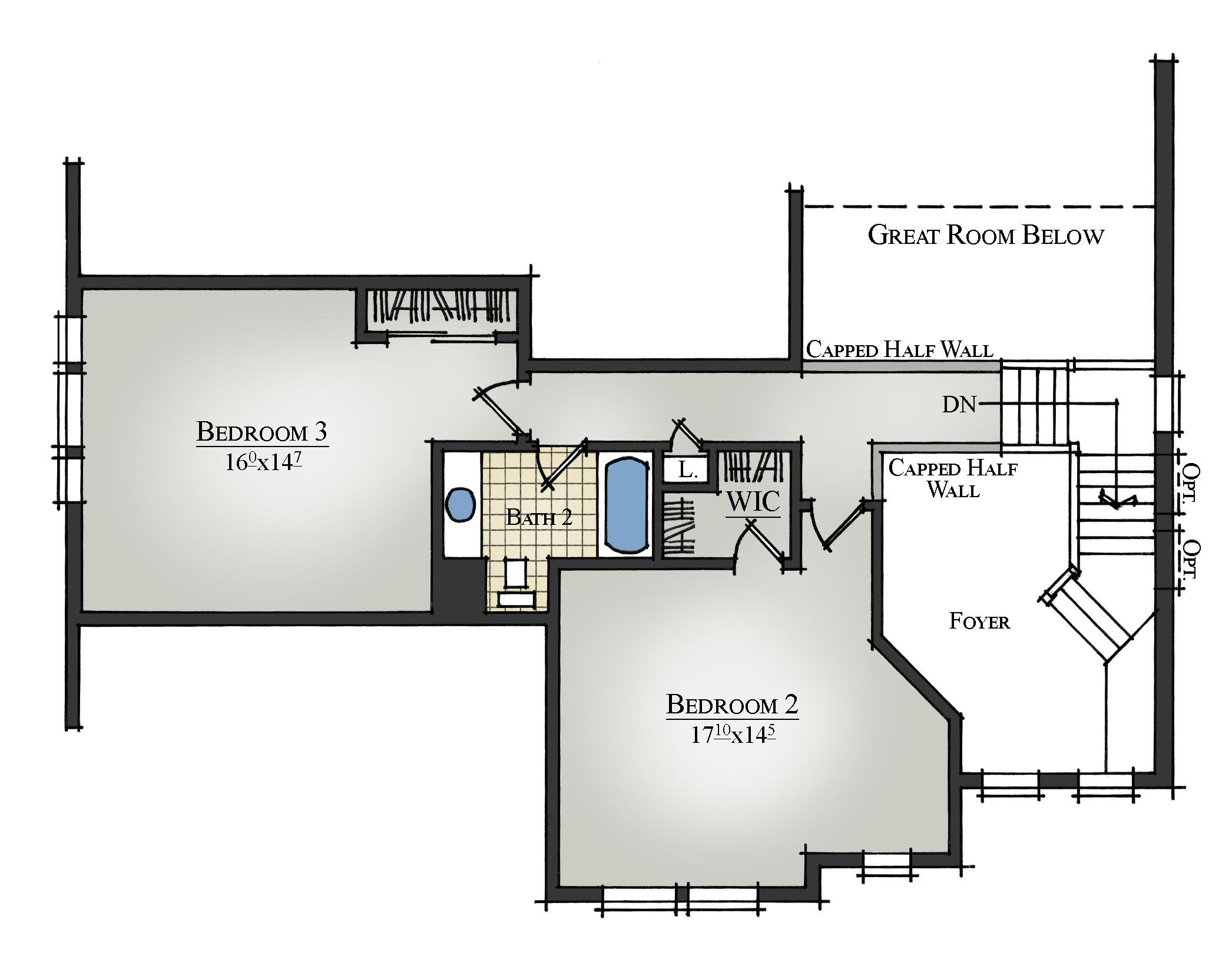
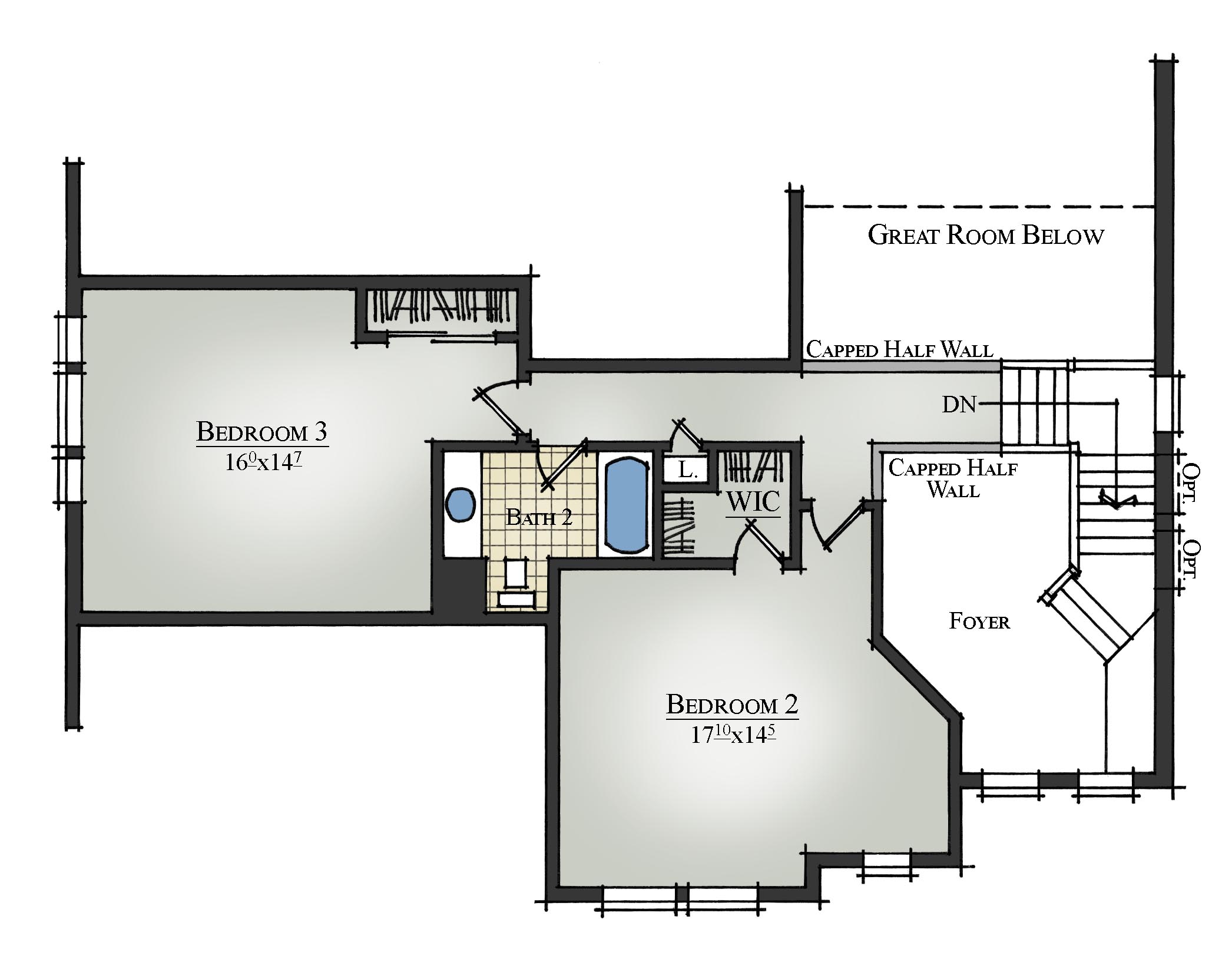
Upstairs, you can enjoy views down into the great room and foyer and will find two additional bedrooms sharing a full bath. If chose not to use a vaulted ceiling, the option to add an additional bedroom or bonus room is available.
REQUEST INFORMATION >
Available in these Communities
Juniper Ridge
$ 696,900
Forest Grove
$ 751,900
Waite Meadows
$ 821,900
Elevations
Elevation A
- Double square columns on the front porch
- flat headers accenting three front windows
Elevation B
- Shake siding in three gables
- Decorative vent detail in main gable
- Cultured stone wainscoting in front of study with two return walls
- Double square columns at front porch
Elevation C
- Vertical siding and brackets (8) in garage and two upper gables
- Decorative vent detail in main gable
- Cultured stone wainscoting in front of study and garage with two return walls
- Double square columns at front porch
Plan Details
Media Gallery
"
"
"
View more




